|
|
Descriptions:
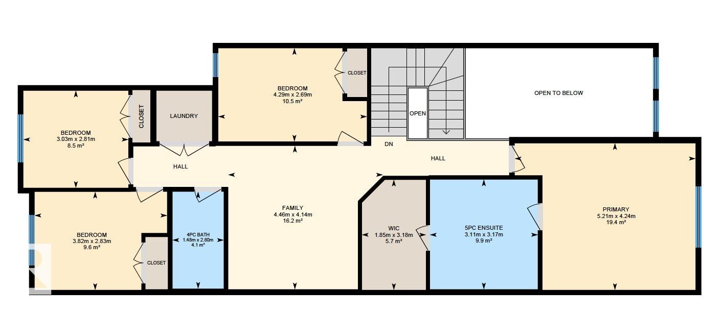
A showstopping blend of bold architecture and modern luxury, 7 bedrooms & 4 baths, this exceptional home offers 2,291 sq. ft. of elevated living, with dramatic open-to-above ceilings and a striking porcelain slab feature wall with a sleek linear Fireplace. Built for big family living and unforgettable gatherings, the main floor features a stunning chef's kitchen with custom cabinetry, premium finishes, SS appliances, a waterfall quartz island, and a walk-through spice kitchen w/gas range perfect for hosting and everyday life. A versatile main-floor bedroom/office adds flexibility, plus central AC. Upstairs, a spacious bonus room is ideal for family time, alongside 4 generous bedrooms, including a luxurious 5-pc primary ensuite w/ dual sinks, soaker tub, glass shower, heated floors and walk-in closet, and upper-floor laundry. The fully developed legal basement suite w/ separate side entrance offers 2 additional bedrooms ideal for extended family or added income in the sought-after community of Cy Becker.
|
|
|
| Includes: |
|
Air Conditioning-Central, Dishwasher-Built-In, Garage Control, Garage Opener, Oven-Built-In, Oven-Microwave, Stove-Countertop Electric, Stove-Gas, Window Coverings, Dryer-Two, Refrigerators-Two, Stoves-Two, Washers-Two, Dishwasher-Two, Curtains and Blinds |
|
|
|
|
|
| Site Influences: |
| Fenced, Flat Site, Landscaped, Low Maintenance Landscape, Shopping Nearby |
|
| Legal Description: |
| ACCESS Legal Description |
|
| Location & Listing Info: |
|
|
| Lot Shape: |
Rectangular |
|
|
|
|
|
| Property Info: |
|
| Property Type: |
Detached Single Family |
| Home Style: |
2 Storey |
| Year Built: |
2023 |
| Total Floor Area: |
2,292 sq. ft. |
| Front Exposure: |
North
|
|
|
|
|
|
| Exterior: |
|
| Exterior: |
Fenced, Flat Site, Landscaped, Low Maintenance Landscape, Shopping Nearby |
| Front Exposure: |
North |
| Roof: |
Asphalt Shingles |
|
|
|
|
|
|
|
|
|
|
| Rooms: |
|
| Total Bedrooms: |
7
(Bedrooms Above: 5)
|
| Bathrooms: |
Full: 4
/ Half: 0
|
| Rooms Above: |
8 |
|
|
|
|
|
| Additional Info: |
|
| Heating: |
Y |
| Basement: |
Full, Finished |
| Basement Type: |
Full, Finished |
| Floor Finish: |
See Remarks, Vinyl Plank |
| Parking: |
Double Garage Attached |
|
|
|
|
|
|
|
|
|
|
|
|
|
|
|
 |
Contact Ed Massa -
8104 160 Ave, Edmonton, Alberta, T5Z 3J8
|
|
|
|
|
|
|
|
|
|
Copyright 2026 by the REALTORS® Association of Edmonton. All Rights Reserved. Data is deemed reliable but is not guaranteed accurate by the REALTORS® Association of Edmonton. Data was last updated March 3, 2026, 6:48 pm. |
|
|
|
|
The data included on this website is deemed to be reliable, but is not guaranteed to be accurate by the REALTORS® Association of Edmonton.
MLS®, Multiple Listing Service®, and the associated logos are all registered certification marks owned by CREA and are used to identify real estate services provided by brokers and salespersons who are members of CREA. The trademarks REALTOR®, REALTORS® and the REALTOR® logo are controlled by The Canadian Real Estate Association (CREA) and identify real estate professionals who are members of CREA. Used under license.
|