|
|
Descriptions:
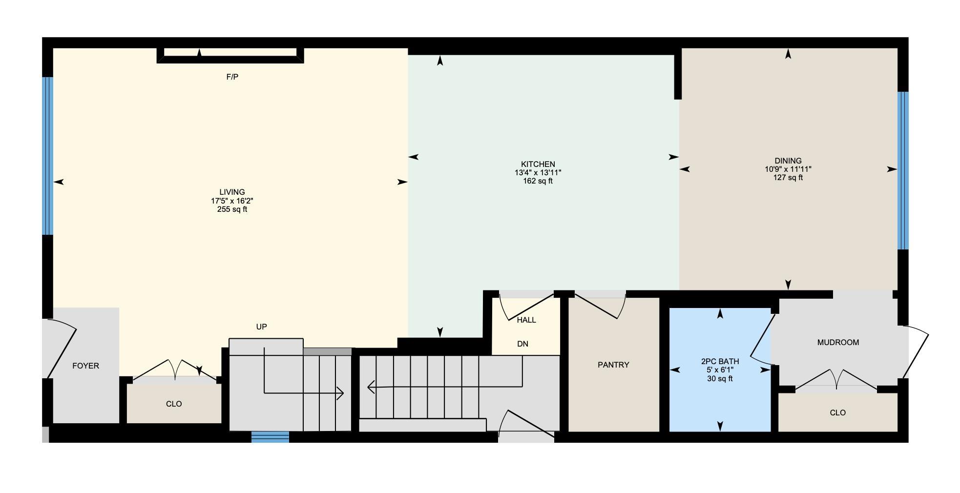
ORIGINAL OWNERS OFFERING A TURNKEY CUSTOM COVENTRY BUILT 2 STORY C/W LEGAL SUITE AND RARE TRIPLE CAR GARAGE! This Home Seriously Needs NOTHING! Boasting a Beautiful Open Concept Floor Plan Featuring Vinyl Plank Flooring Throughout, Stainless Steel Appliances, Upgraded Fixtures and Lighting, a Brick Feature Wall With Electric Fire Place, a Custom 11' Island, Quartz Tops With Matching Backsplash. The Upper Level Has 2 Spacious Bedrooms Sharing a 4 Pce Bath, Same Level Laundry and an Expansive Primary Bedroom and Ensuite Featuring Quartz Tops, Large Shower and Bidet. Tons of Natural Light Enhances The Tasteful Neutral Decor. BONUS Basement Potential Is Realized Via The Spacious 1 Bedroom Legal Suite Featuring Stainless Appliances, Island With Storage, Ample Kitchen With Pantry a Large 4 Pce Bath and a Huge Combo Laundry Storage Area. Outside, This Corner Lot is Securely Fenced With Lots of Parking. A Heated Triple Car Garage is Steps Away! Pictures Don't Lie! I've Got Your Keys! Well Worth a Look See it Now!
|
|
|
| Includes: |
|
Dishwasher-Built-In, Garage Control, Garage Opener, Oven-Microwave, Wine/Beverage Cooler, Dryer-Two, Refrigerators-Two, Stoves-Two, Washers-Two, Garage Heater |
|
|
|
|
|
| Site Influences: |
| Back Lane, Corner Lot, Fenced, Fruit Trees/Shrubs, Landscaped, Paved Lane, Playground Nearby, Public Transportation, Shopping Nearby |
|
| Legal Description: |
| ACCESS Legal Description |
|
| Location & Listing Info: |
| Neighbourhood: |
Crystallina Nera West
|
|
| Lot Shape: |
Rectangular |
|
|
|
|
|
| Property Info: |
|
| Property Type: |
Detached Single Family |
| Home Style: |
2 and Half Storey |
| Year Built: |
2021 |
| Total Floor Area: |
1,698 sq. ft. |
| Front Exposure: |
East
|
|
|
|
|
|
| Exterior: |
|
| Exterior: |
Back Lane, Corner Lot, Fenced, Fruit Trees/Shrubs, Landscaped, Paved Lane, Playground Nearby, Public Transportation, Shopping Nearby |
| Front Exposure: |
East |
| Roof: |
Asphalt Shingles |
|
|
|
|
|
|
|
|
|
|
| Rooms: |
|
| Total Bedrooms: |
4
(Bedrooms Above: 3)
|
| Bathrooms: |
Full: 3
/ Half: 1
|
| Rooms Above: |
6 |
|
|
|
|
|
| Additional Info: |
|
| Heating: |
Y |
| Basement: |
Full, Finished |
| Basement Type: |
Full, Finished |
| Floor Finish: |
Carpet, Ceramic Tile, Vinyl Plank |
| Parking: |
Triple Garage Detached |
|
|
|
|
|
|
|
|
|
|
|
|
|
|
|
 |
Contact Ed Massa -
8104 160 Ave, Edmonton, Alberta, T5Z 3J8
|
|
|
|
|
|
|
|
|
|
Copyright 2026 by the REALTORS® Association of Edmonton. All Rights Reserved. Data is deemed reliable but is not guaranteed accurate by the REALTORS® Association of Edmonton. Data was last updated March 12, 2026, 7:30 pm. |
|
|
|
|
The data included on this website is deemed to be reliable, but is not guaranteed to be accurate by the REALTORS® Association of Edmonton.
MLS®, Multiple Listing Service®, and the associated logos are all registered certification marks owned by CREA and are used to identify real estate services provided by brokers and salespersons who are members of CREA. The trademarks REALTOR®, REALTORS® and the REALTOR® logo are controlled by The Canadian Real Estate Association (CREA) and identify real estate professionals who are members of CREA. Used under license.
|